︎
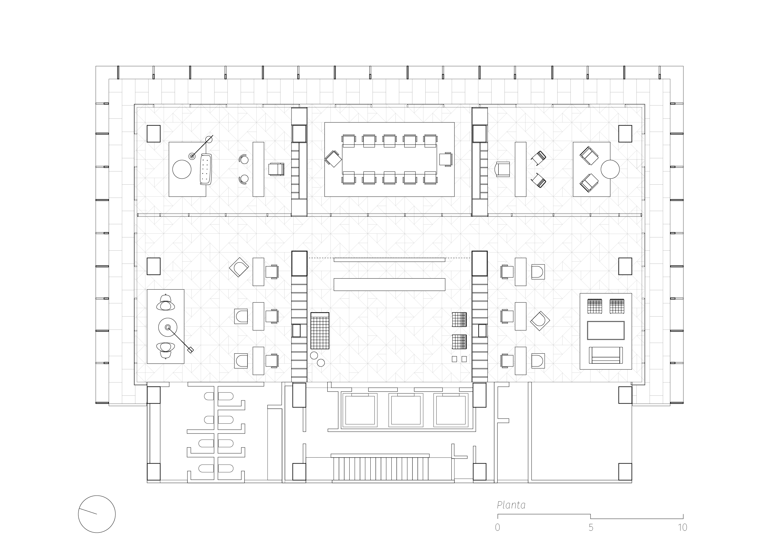
Falcón Global Capital
Texto
2024
Oficinas
Ciudad de México
Proyecto
Año
Tipología
Localización
Estado
Mérida 164, Int 301. Roma Norte, CDMX
Construido
Casa Palmas
Casa Tepepan
Casa Tepoztlán
Casa Texcoco
Casa Rosario
Cubierta de madera
Chihuahua 93
San Rafael
Arquímedes 57
Oficinas Terton
B72
Pato Manila
Diamantina
Proyecto
Casa Jade
Casa Pirul
Méek
Muluk
Torre Cerritos
Falcón Global Capital
Santo Madero
Mobiliario
3 PM
Banco AB
Arte
A quien corresponda
La voz de la materialidad
A través de los límites
La planta arquitectónica
Workshops
Una nueva perspectiva
Nosotros
Contacto
Instagram